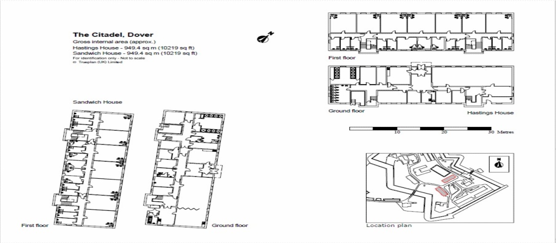
| Floor Plan for Sandwich House (pdf) |
| Area in sqm | 949.4 |
| Area in sqf | 10,219 |
| Current Use | Hotel (C2A is a secure residential institutions, such as) |
| Future Use | C2A |
| No of Rooms at Lower Ground Floor | NA |
| No of Rooms at Ground Floor | |
| No of Rooms at First Floor | |
| Total Rooms in the building | |
| Proposed no of Rooms | ? |