.

Key Features:

  • Location – 22-24 Main Street, Bray, Co. Wicklow
  • Site Area: 0.121 hectare / 0.3 acres
  • Planning Permission Approved for Mixed Use Development, including 15 residential units
  • Well serviced with Social, Utility, Road & Rail Infrastructure
  • Located in Town Centre

Site Acquisition Cost = €1.1m “The Investment”

  • Development Funding Required = € 4 m
  • Development Funding is available separately

Disposal Strategy

  • Sell six townhouses for €4.5m (inc. VAT)
  • Retain nine no. Apartments as Disabled Housing


proposed development

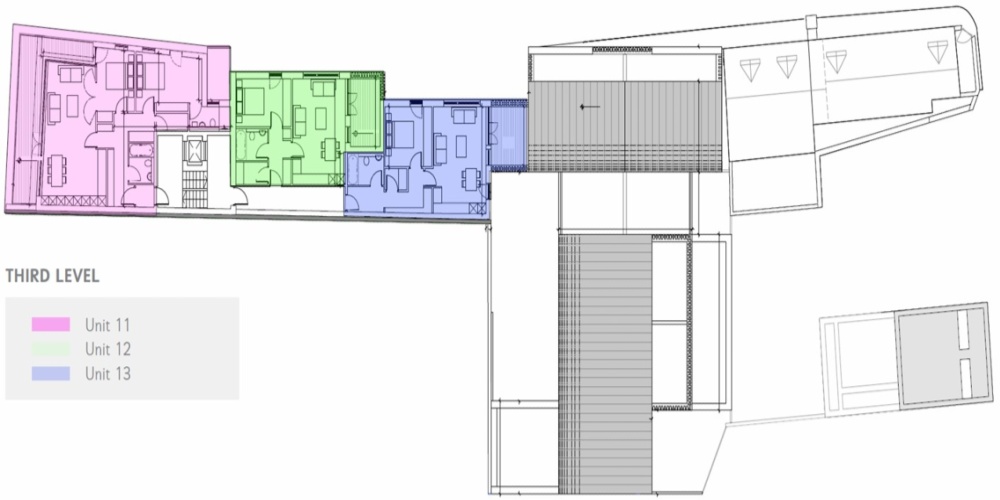
15 no. Residential Units GFA: 1,326 sqm
6 no townhouses Planning Approval gained March 2022
9 no. Apartments + 2 additional with converted Office Brownfield – Urban Renewal Project

 



Proposed Accommodation

Unit Type Sqm Sq ft Unit Type Sqm Sq ft
16 Retail Unit 94.7 1,019 8 3 Bed Apartment 103.2 1,110
17 Office Suite 70 753 9 1 Bed Apartment 47.1 507
1 3 Bed Townhouse 111.4 1,119 10 1 Bed Apartment 53.2 562
2 3 Bed Townhouse 111.4 1,119 11 2 Bed Apartment 84.0 904
3 3 Bed Townhouse 116.9 1,259 12 1 Bed Apartment 47.1 507
4 3 Bed Townhouse 116.9 1,259 13 1 Bed Apartment 47.1 507
5 3 Bed Townhouse 122.6 1,319 14 2 Bed Apartment 84.0 904
6 1 Bed Apartment  67.1 507 15 3 Bed Townhouse 102.3 1,101
7 1 Bed Apartment  53.2 562        

 



Planning Application: PL27.314757

Description Amendments to the previously approved planning permission, reference no. 22/214 to include the addition of 3 units, to increase the total number of residential units on the entire site from 15 to 18 units.
Case type Planning Appeal
Decision Refuse Permission
Date signed 15/11/2023
EIAR No
NIS No
Parties

Cutbush Developments Limited (Applicant)

Cutbush Developments Limited (1st Party Appellant) (Active)

History
  • 15/11/2023 - Refuse Permission

  • 04/10/2022 - Lodged

 Case reference: PL27.314757 - Planning Authority Case Reference: 22796

 



floor Plans



LEGAL PACK



Disclaimer

Valuations & Appraisals by Sleek are strictly estimates only and you should use them on that basis. The valuation Model analyses prices for equivalent properties sold or sold in the area. These properties may differ in ways that we do not or cannot consider. Valuations are subjective and based on market forces, which may change. Valuations must not be used for property sale, purchase, mortgage or related purposes. You should seek a professional valuation from a qualified surveyor before deciding whether to buy or sell a property. We shall not be liable for any losses you or anyone else suffer due to relying on the valuations. This includes not being liable for any loss of property, loss of bargain, loss of capital through over-payment or under-sale or for any indirect, special or consequential loss.