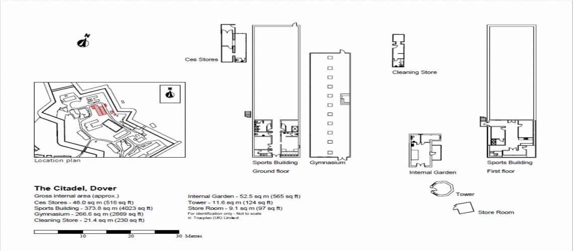
| Floor Plan for Internal Garden (pdf) |
| Area in sqm | 52.5 |
| Area in sqf | 565 |
| Current Use | Water/Beer (Class E: Commercial, business, and service uses) |
| Future Use | Class-E TBA |
| No of Rooms at Lower Ground Floor | NA |
| No of Rooms at Ground Floor | |
| No of Rooms at First Floor | NA |
| Total Rooms in the building | |
| Proposed no of Rooms | ? |