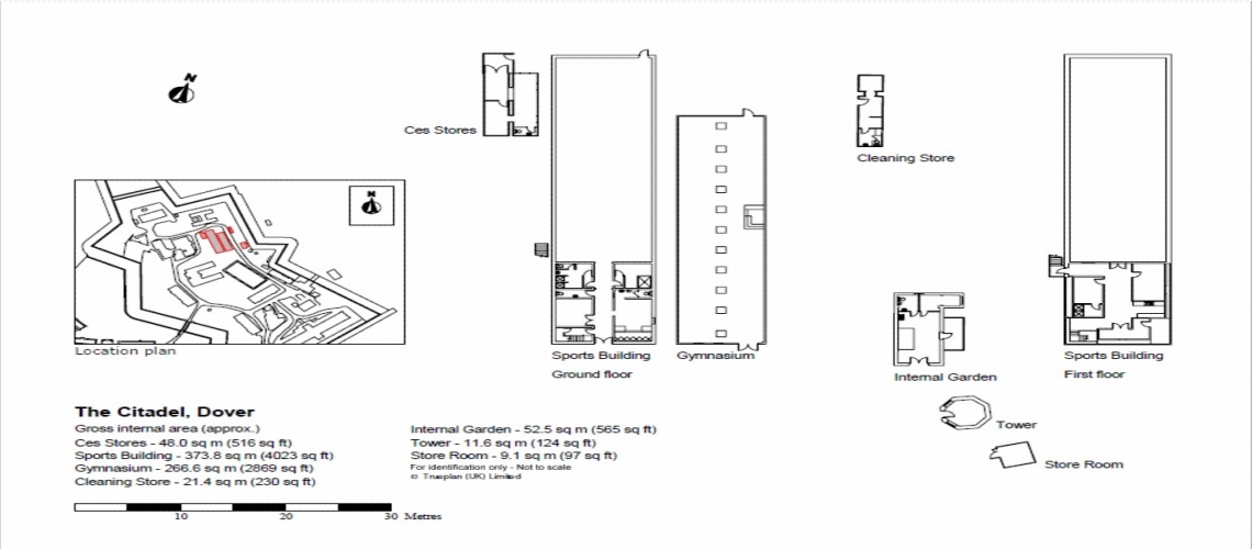
| Floor Plan for Tower (pdf) |
| Area in sqm | 11.6 |
| Area in sqf | 124 |
| Current Use | Water/Beer (It includes shops, offices, restaurants) |
| Future Use | Class-E TBA |
| No of Rooms at Lower Ground Floor | NA |
| No of Rooms at Ground Floor | 1 |
| No of Rooms at First Floor | NA |
| Total Rooms in the building | 1 |
| Proposed no of Rooms | ? |