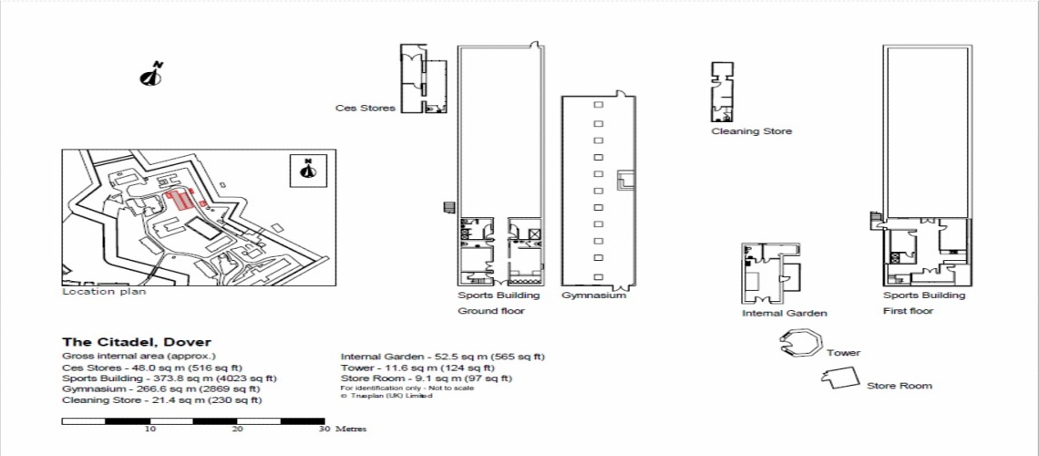
| Floor Plan for Store Room (pdf) |
| Area in sqm | 9.1 |
| Area in sqf | 97 |
| Current Use | Water/Beer |
| Future Use | Class-E TBA |
| No of Rooms at Lower Ground Floor | NA |
| No of Rooms at Ground Floor | 1 |
| No of Rooms at First Floor | NA |
| Total Rooms in the building | 1 |
| Proposed no of Rooms | ? |