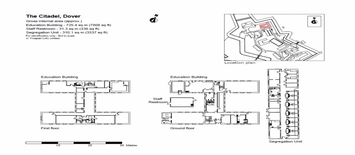
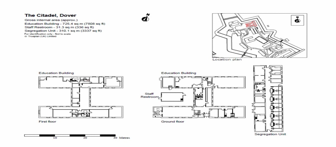
| Floor Plan for Education Building (pdf) |
| Area in sqm | 725.4 |
| Area in sqf | 7,808 |
| Current Use | Business Space |
| Future Use | |
| No of Rooms at Lower Ground Floor | NA |
| No of Rooms at Ground Floor | |
| No of Rooms at First Floor | |
| Total Rooms in the building | |
| Proposed no of Rooms | ? |