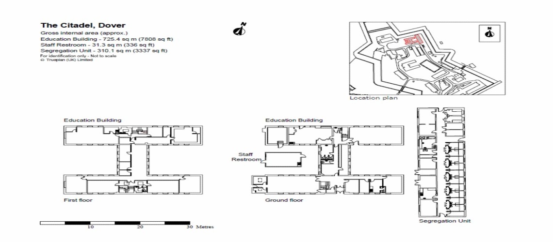
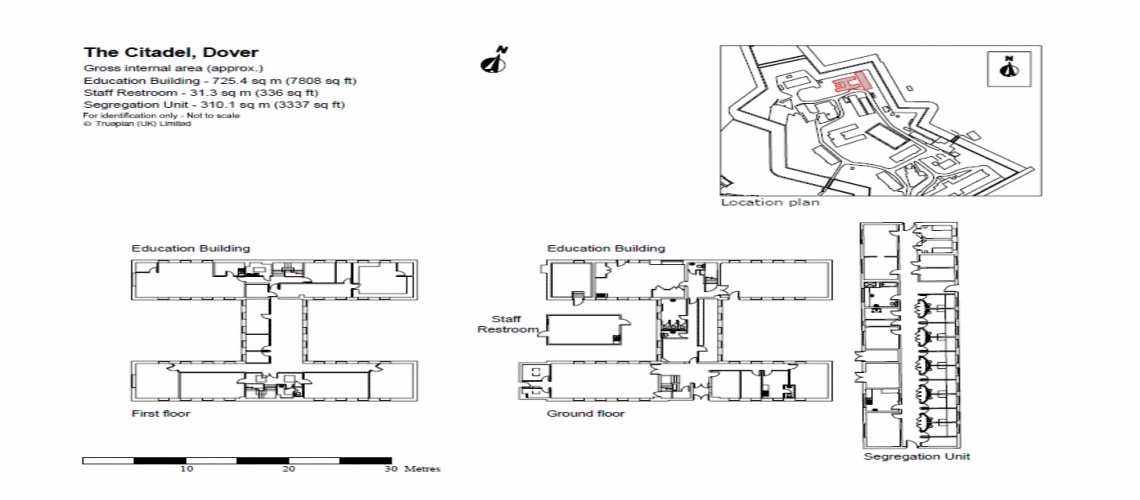
| Floor Plan for Segregation Unit (pdf) |
| Area in sqm | 310.1 |
| Area in sqf | 3,337 |
| Current Use | Business Space |
| Future Use | |
| No of Rooms at Lower Ground Floor | NA |
| No of Rooms at Ground Floor | |
| No of Rooms at First Floor | NA |
| Total Rooms in the building | |
| Proposed no of Rooms | ? |