Attractive Grade 2 Listed Public House situated in a prominent position.
Reasonably sized trading areas with first floor 3 bedroom flat, garden and car park providing approximately 13 spaces.
PLANNING CONDITIONS PROGRESS REPORT & CURRENT STATUS
| 1. |
Permission Expiry 9 Dec 27 | 8. |
New accesses | 15. |
Sustainable drainage measures |
| 2. |
Approved Plans & drawings | 9. |
Footway resurfaced | 16. |
Working hours |
| 3. |
Use plan-specified materials |
10. |
Splays to increase visibility on the carriageway |
17. |
Contamination Verification |
| 4. |
Building recording programme | 11. |
Vehicle parking and/or turning space | 18. |
Ecological enhancement |
| 5. |
Archaeological work programme | 12. |
Cycle parking | 19. |
External lighting |
| 6. |
Details of electric vehicle charging points | 13. |
Landscaping plan | 20. |
Habitat Management and Monitoring Plan (HMMP) |
| 7. |
Construction Method Statement | 14. |
Scheme for the protection of trees | 21. |
Obscure windows-glazing |
| Property Type: | Retail |
| Building/Plot Size | 9,713 SF |
| Building Class | C |
|
Year Built
|
1742 |
| Number of Floors | 3 |
| Building FAR | 0.89 |
| Plot Size | 0.25 AC |
| Frontage |
36 ft on Chapel Street
|
| Views | Proposed |
| 3D Rendered views, Sep23 | Full Pre app drawings, Jun23 |
| Pre App Response - Approval (13Sep23) | |
| Planning Application & Approval | |
| Planning & Design Statement - Hybrid Planning & Development Architects | |
| Planning Approved - Decision (Section 106) - 19Dec24 |
| GDV Valuation (Estimated) |
|
| Units Type (Flats) | Number of Units |
| 2Bed; 3 Persons | 1 |
| 2Bed; 4 Persons | 2 |
| 3Bed; 4 Persons | 2 |
| Total | 5 |
| GDV valuation by Chartered Surveyor - TBA |
| GDV Appraisal by Sleek Jul24 |
| Gross Development Value (Estimated) | ||||||
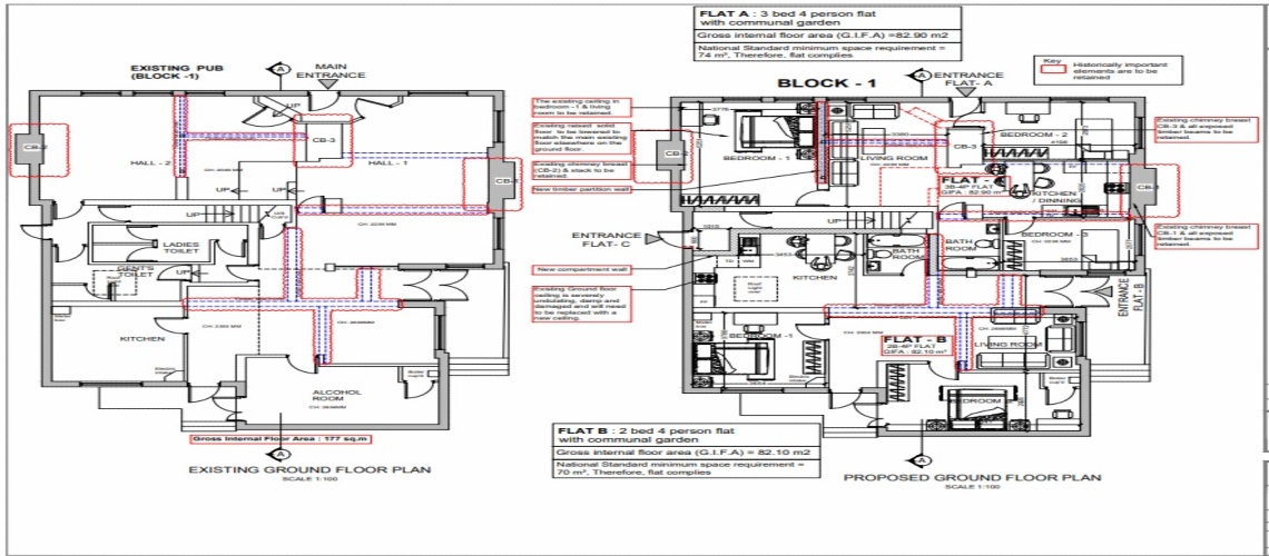
| Flat No. | Floor | Description |
Sqft NIA |
Sqm NIA |
Value | £ per Sqm |
| A | Ground | 3 Bed / 4 Person | 892.3 | 82.9 | £329,200 | 4000 |
| B | Ground | 2 Bed / 4 Person | 883.7 | 82.1 | £328,400 | 4000 |
| C | First | 3 Bed / 4 Person |
937.53 | 87.1 | £348,400 | 4000 |
| E | Ground | 2 Bed / 3 Person |
696.4 | 64.7 | £291,105 | 4500 |
| F | First | 2 Bed / 4 Person |
835.7 | 77.64 | £349,380 | 4500 |
| Communal Area in Block 1 | 10 | £0 | ||||
| Communal Area in Block 2 | 17 | £0 | ||||
| Total |
4536.34 | 421.44 | £1,646,485 | |||
| Gross Rental Income (Estimated) | ||||||
| Flat No. | Floor | Description |
Sqft NIA |
Sqm NIA |
Rent /m | Rent /a |
| A | Ground | 3 Bed / 4 Person | 892.3 | 82.9 | 1750 | 21,000 |
| B | Ground | 2 Bed / 4 Person | 883.7 | 82.1 | 1650 | 19,800 |
| C | First | 3 Bed / 4 Person |
937.53 | 87.1 | 1800 | 21,600 |
| E | Ground | 2 Bed / 3 Person |
696.4 | 64.7 | 1450 | 17,400 |
| F | First | 2 Bed / 4 Person |
835.7 | 77.64 | 1550 | 18,600 |
|
Service Charge |
Communal Area in Block 1 | 10 | £300 | £3,600 | ||
| Service Charge | Communal Area in Block 2 | 17 | £200 | £2,400 | ||
| Total |
4536.34 | 421.44 | £8,700 | £104,400 | ||
| Development Budget Calculations by Sleek - See Table below | |
| Development Costs (Budget) by QS / Monitoring Surveyor - TBA |
Budget for £1.65m GDV
| Legals | £5000 | |
| Architects / Professionals | £49,500 | 3% of GDV |
| Conversion | £340,730 | 262.1 m2 @ £1,300 / m2 |
| New Construction | £358,515 | 159.34 m2 @ £2,250 / m2 |
| Car Parking bays | ????? | 10 spaces with 5 charging points |
| Insurances | £8,250 | 0.5% of GDV |
| Contingency | £82,500 | 5% of GDV |
| CIL / Section106 | £37,000 | |
| Subtotal | £881,495 | |
| Finance costs | £128,400 | 65% LTGDV = £1,070,000 for 12 months @ 1%/m (Net Loan = £877,400) |
| Total | £1,009,495 |
| Construction Quote by Developer - TBA | |
| QS / Monitoring Surveyor initial report by chartered surveyor - TBA | |
| GDV Appraisal Survey by a Chartered Surveyor - TBA |
Surveys & Reports
| Building Regulation Drawings - (Obtaining Quotes) |
| Building Regulation drawings NOTES - TBA |
| Works Pre Commencement Conditions need to be satisfied - (Obtaining Quotes) |
| Building Regs drawings Approval by Building Inspector - TBA |
| Interior Design (Layout) - TBA |
| Construction Insurance - TBA |
| Structural Survey detailed - TBA |
| Noise or Acoustics Report post Constructions - TBA |
| Schedule of Works, 01May25-01May26 |
Certificates
|
Final Certificate for Building Regulations Approval - TBA |
| Electric Installation Certificate - TBA |
| Electric Completion Certificate - TBA |
| Plumbing Installation & Completion Certificate - TBA |
| EPC Certificate - TBA |
| Fire Risk Assessment - TBA |
| NHBC Insurance - TBA |
Apartments Available
| Floor | Apartment No. | ||
| Ground | A | B | E |
| 1st | C | F | |
|
Sales Schedule & Apartment Details |
Profit (Estimated)
| Sale Price | £1,650,000 | |
| Sales Costs (Agent + Legal) @1.5% of GDV | £24,750 | |
| Acquisition costs | £450,000 | |
| Development Costs | £1,009,495 | |
| Total Costs: | 1,484,645 | |
| Profit | £165,355 |
ROI (Estimated)
| Cash Invested | £500,000 |
| Profit Earned | £165,355 |
| ROI | 33% |
Cash Advance
| GDV | £1,650,000 | |
| BTL Remortgage at 75% LTV | £1,237,500 | |
| Development Loan redemption | £1,009,495 | |
| Cash Advance Available (Gross) | £228,005 |
Rental Income (Annual)
| Rental Income (Gross) | £104,400 | |
| Mortgage Instalment at 5% APR | £61,875 | |
| Income (Net) | £42,550 |
Valuations & Appraisals by Sleek are strictly estimates only and you should use them on that basis. The valuation Model analyses prices for equivalent properties sold or sold in the area. These properties may differ in ways that we do not or cannot consider. Valuations are subjective and based on market forces, which may change. Valuations must not be used for property sale,
purchase, mortgage or related purposes. You should seek a professional valuation from a qualified surveyor before deciding whether to buy or sell a property. We shall not be liable for any losses you or anyone else suffer due to relying on the valuations. This includes not being liable for any loss of property, loss of bargain, loss of capital through over-payment or under-sale or for any indirect, special or consequential loss.