Property Description

Land adjacent to 69 Woodside

Alwyne Road, Wimbledon, London, SW19 7AE

 

A well-located rectangular site of approximately 1,294 sq ft with planning permission granted for three new build flats (1 x two-bedroom flat, 2 x one-bedroom split-level flats), convenient for Wimbledon Town Center, excellent transport links, fashionable Wimbledon Village and the Common -

 

Guide price: £460,000 - £550,000                            (Vacant - Freehold)

Key Features:

  • A well-located rectangular site of approximately 1,294 sq ft
  • Planning permission granted for three new build flats (1 x two bedroom flat, 2 x one bedroom split level flats)
  • Potential to alter proposed plans to create 3 x two bedrooms
  • Direct vehicular access onto Alwyne Road
  • Conveniently located near Wimbledon Town Center, excellent transport links, fashionable Wimbledon Village, and the Common
  • Frontage and vehicular access to Alwyne Road


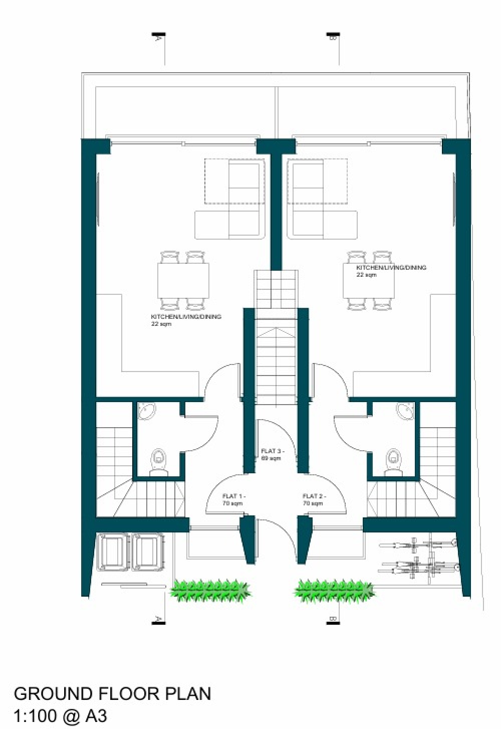
Proposed Accommodation

Flat 1 70 sq m, 753 sq ft Basement - Bedroom with en-suite, Office, Rear Patio Ground Floor - Open Plan Kitchen/Living/Dining, WC
Flat 2 70 sq m, 753 sq ft Basement - Bedroom with en-suite, Office, Rear Patio Ground Floor - Open Plan Kitchen/Living/Dining, WC
Flat 3 69 sq m, 742 sq ft First Floor - Open Plan Kitchen/Living/Dining, Two Bedrooms, Bathroom/WC, Two Balconies

 



Acquisition Cost

Purchase Price £500,000
Stamp Duty £40,000
Agent's Fee (1.5%+vat ) £9,000
Legal & Misc £5,000
Total Acquisition Cost £554,000

 



Cash Investment Required

Purchase Price £500,000
Stamp Duty £40,000
Agent & Legal £14,000
Construction Budget. £575,000
Misc £31,000
Total £1,160,000

 



Profit

Profit (Estimated)
GDV (Sale Price)   £2,100,000
Sales Agent + Legal (2%) £42,000  
Acquisition costs £554,000  
Development Costs  £575,000  
Total Costs:    £1,171,000
Profit   £929,000

 



Return on Investment

ROI (Estimated)
Cash Invested £1,160,000
Profit Earned £929,000
Total ROI 80.0%
Profit for JV Partner (50% share) £464,500
ROI for JV Partner         40.0%

 



GDV Appraisal

 

Units Type (Flats) Number of Units
Two Beds (4 person) 1
Two Beds (4 person) 1
Two Beds (4 person) 1
Total Units 3

 



Gross Development Value (Collective)
Units Level Description GIA m2 NIA m2 Value
1 Basement + Ground 2 Bedroom (4 Person) 70 70 £700,000
1 Basement + Ground 2 Bedroom (4 Person) 70 70 £700,000
1 First Floor 2 Bedroom (4 Person) 69 69 £700,000
Total:   Sale@£10,000/m2 209 209 £2,100,000

 

Gross Rental Value (Collective)
Units Level Description Sqm Value (Rent)
1 Basement + Ground 2 Bedroom (4 Person) 70 £62,400
1 Basement + Ground 2 Bedroom (4 Person) 70 £62,400
1 First Floor 2 Bedroom (4 Person) 69 £62,400
Total:  @ 8.91% Yield
£187,200

 



DEVELOPMENT Costs (Estimates)

 

Item Description Amount £
Legals   £2,000
Professionals / Architect 4% of Construction Cost £21,000
Construction / Refurb 210 m2 @ £2,500 £525,000
Insurances 0.5% of Construction costs £3,500
Section106 / CIL To be verified? £0
Contingency 5% of Construction Cost £24,000
Total   £575,000

 



FULL PLANNING



SURVEYS & REPORTS



DISCLAIMER

Valuations & Appraisals by Sleek are strictly estimates only and you should use them on that basis. The valuation Model analyses prices for equivalent properties sold or sold in the area. These properties may differ in ways that we do not or cannot consider. Valuations are subjective and based on market forces, which may change. Valuations must not be used for property sale, purchase, mortgage or related purposes. You should seek a professional valuation from a qualified surveyor before deciding whether to buy or sell a property. We shall not be liable for any losses you or anyone else suffer due to relying on the valuations. This includes not being liable for any loss of property, loss of bargain, loss of capital through over-payment or under-sale or for any indirect, special or consequential loss.