PROPERTY DESCRIPTION & CURRENT CONDITION IMAGES

First Floor, 53-54 Swanley Centre, Swanley, Kent, BR8 7TQ

Vacant- First Floor Office Space with Planning Permission

Leasehold -  Held on a lease for a term of 125 years from 25.02.2025 with a peppercorn ground rent. 

 

Key Features
  • Planning Permission Granted for Conversion into Two x 1 Bedroom Flats (C3 Use)
  • Swanley Rail Station is within walking distance
  • Swanley Park is nearby
  • Local shops and amenities are available within Swanley town centre
  • Swanley Rail Station is approximately 0.4 miles away, offering direct services to London's Victoria and London Bridge stations
  • The A20 is easily accessible, providing a connection to the M25 and M20 motorways

       Video Tour              Read More

                                                                                                                        



Swanley Video Tour



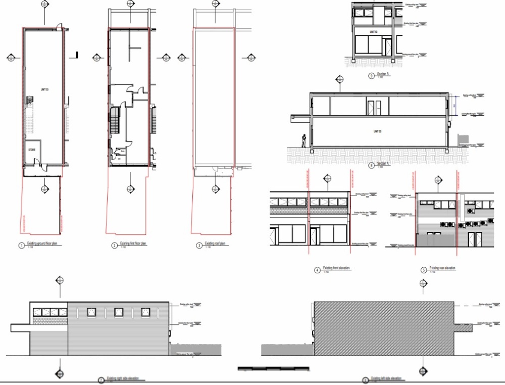
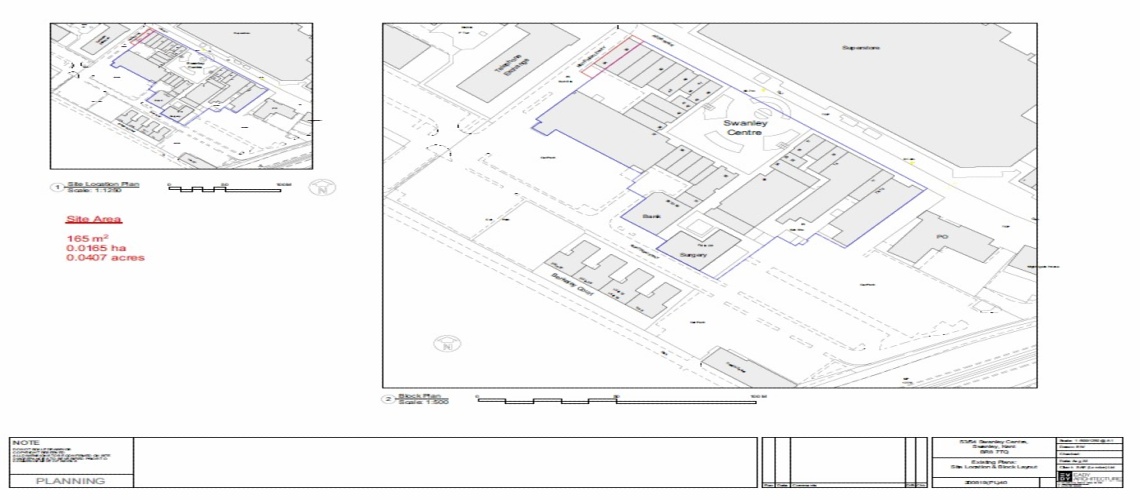
PROPOSED & EXISTING DRAWINGS



.



SURVEYS & REPORTS



Building Regulation & structural drawings



SAP, MVHR & INSULATION



Acquisition Cost

 

 

Purchase Price £135,000
Stamp Duty £6,750
Agent's Fee (1.5%+vat ) £2,000
Legal & Misc £2,000
Total Acquisition Cost £145,750

 



Cash Invested

Acquisition Costs at Purchase £145,750
Professionals / B.R / Structural / Interior design etc £9,250
Development Loan: Legal + QS + MS £5,000
Total £160,000

 



Profit

Profit (Estimated)
GDV (Sale Price)   £450,000
Interest on £150k development loan for 12m £21,000  
Sales Agent + Legal (2%) £9,000  
Acquisition costs £145,750  
Development Costs  £140,000  
Total Costs:    £315,250
Profit   £134,250

 



Return on Investment

 

ROI (Estimated)
Cash Invested £160,000
Profit Earned £134,250
Total ROI 84%
Profit for JV Investment Partner £67,125
ROI for JV Investement Partner 42%

 



Gross development Valuation / APPRAISAL

 

Units Type (Flats) Number of Units
One Bed (1person) 2
Total Units 2

 



.

Gross Development Value (Collective)
Units Level Description NIA m2 NIA Sqf Value
  First One Bed (1person) 44.0 473.61 £231,000
  First One Bed (1person) 41.7 448.85 £219,000
  First Communal Area 7.0 75.25  
  Ground Landing & Stairs Communal 20.0 215  
Subtotal     114.7 1231  
Total   Saleable area @ £5,250 /m2 85.7 922.46 £450,000

 



.

Gross Rental Value (Collective)
Units Level Description sqm Value
  First One Bed (1person)  44.0  £18,600
  First One Bed (1person)  41.7 £17,400
Total: @ 8.0% Yield £36,000

 



DEVELOPMENT Costs (Estimates)

Item Description Amount £ Total
Legals   £3,000  
Professionals / Architect 10% of Construction Cost £13,000  
Conversion  92.7 m2 @ £1,400 £130,000  
Insurances 0.5% of Construction costs £3,000  
CIL   £0  
Contingency 10% of Construction Cost £13,000  
Subtotal     £162,000
Finance Cost 15% @ 1% per month for £150k £24,300  
Total     £186,300

 

 



Development Plan & Progress



Legals



PLANNING CONDITIONS

No. Summary  Specialist Consultant Fee  Status
1. Permission expires on 9 june 2026 CBC - Complete Building Control TBA Notice to be served to council
2.

The development hereby permitted shall be carried out in accordance with the following approved plans and details

PL40-SITE LOCATION & BLOCK LAYOUT PL44-PROPOSED EXTERNAL ALTERATION WORKS
PL43-EXTERNAL ALTERNATION WORKS PL45-CLOPUD Application

 

     
3.

Notwithstanding the Noise Impact Assessment submitted, no development shall take place until a scheme for protecting the proposed dwelling(s) from noise has been submitted to and approved in writing by the local planning authority. The development shall be carried out in accordance with the approved details before any permitted dwelling is occupied unless an alternative period is first agreed in writing by the local planning authority.

To ensure the occupiers of the development are not unduly affected by noise disturbance in accordance with Policy EN2 of the Sevenoaks Allocations and Development Management Plan.

     
4. Following implementation of the recommended noise mitigation measures and prior to first occupation of any of the dwellings, a verification report to include sound testing shall be submitted for approval to the local planning authority to demonstrate that the internal amenity area noise levels as detailed in the report prepared by ACA acoustics (Report Reference: 221203-R001A) have been satisfactorily achieved. To ensure the occupiers of the development are not unduly affected by noise disturbance in accordance with Policy EN2 of the Sevenoaks Allocations and Development Management Plan.      

 



Disclaimer

Valuations & Appraisals by Sleek are strictly estimates only and you should use them on that basis. The valuation Model analyses prices for equivalent properties sold or sold in the area. These properties may differ in ways that we do not or cannot consider. Valuations are subjective and based on market forces, which may change. Valuations must not be used for property sale, purchase, mortgage or related purposes. You should seek a professional valuation from a qualified surveyor before deciding whether to buy or sell a property. We shall not be liable for any losses you or anyone else suffer due to relying on the valuations. This includes not being liable for any loss of property, loss of bargain, loss of capital through over-payment or under-sale or for any indirect, special or consequential loss.