PROPERTY DESCRIPTION & CURRENT CONDITION IMAGES

First Floor, 54 Swanley Centre, Swanley, Kent, BR8 7TQ

Vacant -  First Floor Office Space with Planning Permission

Leasehold - Held on a lease for a term of 125 years from 25.02.2025 with a peppercorn ground rent.  

Key Features

  • Planning Permission Granted for Conversion into Two x 1 Bedroom Flats (C3 Use)
  • Swanley Rail Station is within walking distance
  • Swanley Park is nearby
  • Local shops and amenities are available within Swanley town centre
  • Swanley Rail Station is approximately 0.4 miles away, offering direct services to London's Victoria and London Bridge stations
  • The A20 is easily accessible, providing a connection to the M25 and M20 motorways

           Read More 



Swanley Video Tour At Purchase



Work in Progress



EXISTING & PROPOSED DRAWINGS



.



Schedule Of Work Progress & Accounts



Working drawings

 

 

WORKING DRAWINGS
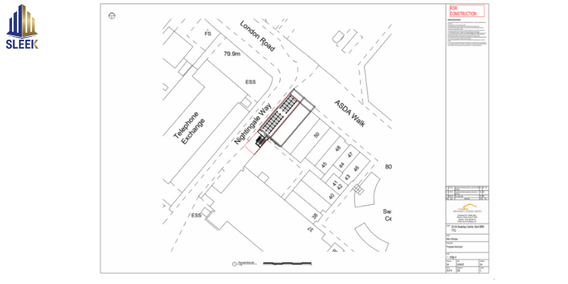
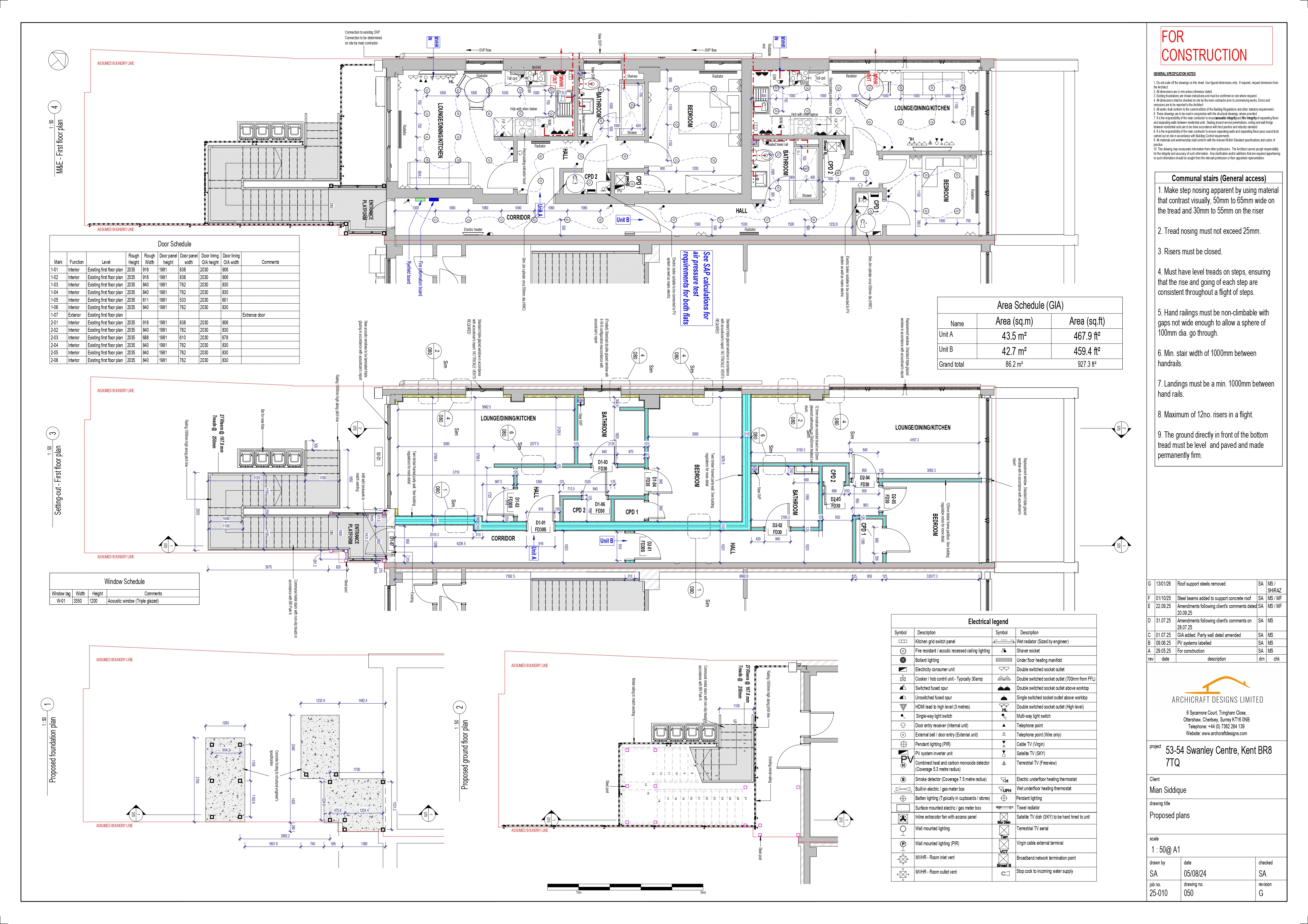
010-Site location plan-Rev C 050-Proposed plans-Rev G, 13Jan26, Swanley 080-Construction details-Rev E
020-Proposed block plan-Rev C 051-Fire strategy & roof plan-Rev E, 13Jan26, Swanley 090-3D Images - Exteriors-Rev C
030-Demolition plans-Rev C 060-Proposed elevations-Rev C 091-3D Images - Interiors-Rev B
040-Existing drawings-Rev C 070-Proposed section-Rev E, 13Jan26, Swanley 095-Drawing register-Rev Current Revision, 13Jan26, Swanley
Pre Construction Information (PCI) - MLA, 54 Swanley Centre, 16Oct25
CONSTRUCTION METHOD STATEMENT - 53-54 SWANLEY CENTRE, KENT BR8 7TQ
MEP: MVHR - BPC-9053949931 Sam Aroko Rev 03 Flat A and B
53-54 SWANLEY CENTRE Rev A - Building Regs and Construction Outline spec

 

 

STRUCTURAL DRAWINGS

Structural Calculations Package - DSK Engineering Ltd, 53 -54 Swanley Centre
Revised Structural Plans - DSK Engineering, Sam Aroko, 13Jan26, Swanley

 

 

COMPLIANCE

Principal Contractor Risk Assessment (Signed) - 54 Swanley Centre MVHR: BPC-9053949931 53-54 SWANLEY CENTRE
Certificate of Public Liability Insurance - Umer builders, Indemnity limit £5m, 4Dec25 - 3Dec26 Insurance copy - 15000262, Swanley Square Shopping Centre
Insurance Policy & Certificate of Insurance - Westcor International Ltd, Amount £380,00, 53-54 Swanley Centre
Consent for commencement of work - Freeholder - Sheet Anchor evolve, Swanley, 26Nov25
Copyright Letter - Eady Architecture, MAYFAIR LONDON PROPERTIES HOLDING LTD, Swanley Center
CDM Risk Register - MLA, 54 Swanley Centre, 16Oct25

 

 

BULDING CONTROL

Acceptance of Initial Notice - Stroma Building, 54 Swanley Centre, Swanley 1Aug25 Amended Initial Notice - Stroma Building 4Aug25
Amendments in Initial Notice - Stroma Building 4Aug25 Building Regulation PLan Appraisal - Stroma Building, Swanley Center
Initial Notice (filled) - Stroma Building control

 



GROSS DEVELOPMENT APPRAISAL

Units Type (Flats) Number of Units
One Bed (1person) 2
Total Units 2

 



.

Gross Development
Units Level Description NIA m2 NIA Sqf
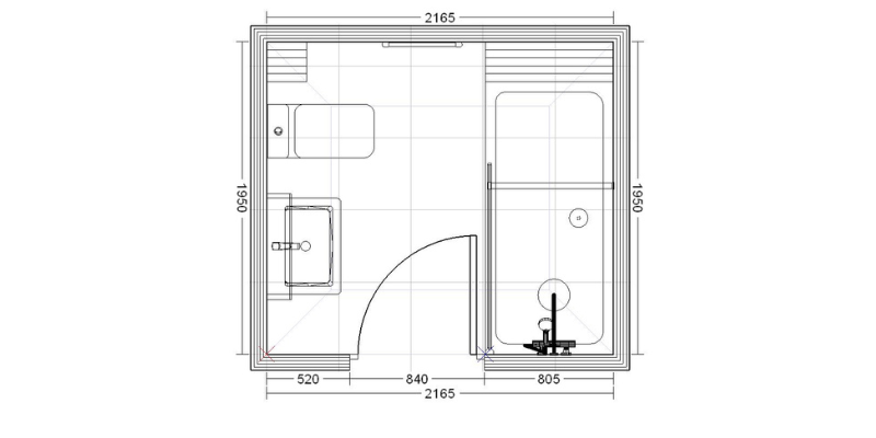
  First One Bed (1person) 44.0 473.61
  First One Bed (1person) 41.7 448.85
Total     85.7 922.46

 

 



PLANNING CONDITIONS

Summary  Specialist Consultant Fee  Status
Permission expires on 9 June 2026

Stroma Building Control

TBA Notice served and accepted by council

Notwithstanding the Noise Impact Assessment submitted, no development shall take place until a scheme for protecting the proposed dwelling(s) from noise has been submitted to and approved in writing by the local planning authority. The development shall be carried out in accordance with the approved details before any permitted dwelling is occupied unless an alternative period is first agreed in writing by the local planning authority.

To ensure the occupiers of the development are not unduly affected by noise disturbance in accordance with Policy EN2 of the Sevenoaks Allocations and Development Management Plan.

Following implementation of the recommended noise mitigation measures and prior to first occupation of any of the dwellings, a verification report to include sound testing shall be submitted for approval to the local planning authority to demonstrate that the internal amenity area noise levels as detailed in the report prepared by ACA acoustics (Report Reference: 221203-R001A) have been satisfactorily achieved. To ensure the occupiers of the development are not unduly affected by noise disturbance in accordance with Policy EN2 of the Sevenoaks Allocations and Development Management Plan.

 



SURVEYS & REPORTS



Quotes



DISCLAIMER

Valuations & Appraisals by Sleek are strictly estimates only and you should use them on that basis. The valuation Model analyses prices for equivalent properties sold or sold in the area. These properties may differ in ways that we do not or cannot consider. Valuations are subjective and based on market forces, which may change. Valuations must not be used for property sale, purchase, mortgage or related purposes. You should seek a professional valuation from a qualified surveyor before deciding whether to buy or sell a property. We shall not be liable for any losses you or anyone else suffer due to relying on the valuations. This includes not being liable for any loss of property, loss of bargain, loss of capital through over-payment or under-sale or for any indirect, special or consequential loss.